Predstavljamo projekt Vinodol Seafront Collection i ograničen broj modernih apartmana koji su trenutno dostupni. Riječ je o potpuno obnovljenom resortu na Kvarneru, u blizini Novog Vinodolskog, za kupce koji traže nekretninu za odmor uz more, uz sve prednosti boravka u uređenom resort okruženju, bez kompliciranog održavanja i s mogućnošću dodatnog prihoda.
Apartmani su smješteni u neposrednoj blizini mora i plaže, s otvorenim ili djelomičnim pogledom na otok Krk. Svaki apartman ima vlastitu terasu ili balkon koji prirodno proširuje stambeni prostor. U ponudi su jednosobni i dvosobni stanovi, kao i prostrani penthouse s otvorenim pogledom na more.
Resort se nalazi na mirnoj lokaciji, s direktnim pristupom plaži te nudi bogat sadržaj, uključujući više bazena, wellness i spa zonu, restorane i barove, kao i sadržaje za sport i obitelj.
Koncept vlasništva je fleksibilan. Nekretninu možete koristiti isključivo za osobne potrebe ili je, po želji uključiti u organizirani program najma kojim upravlja renomirani hotelski operater. Sudjelovanje u najmu nije obavezno i prilagođeno je onima koji žele jednostavan model vlasništva uz potencijal dodatnog prihoda.
Uz apartman je moguće osigurati garažno parkirno mjesto, ovisno o preferenciji kupca. Za uključivanje u program najma potrebno je opremiti nekretninu prema standardu resorta, kroz paket koji ovisi o veličini i tipu jedinice.
Ova nekretnina posebno je zanimljiva kupcima koji traže kombinaciju modernog životnog stila, jednostavnosti i dugoročne vrijednosti.
U ponudi je ograničen broj stanova. Više informacija dostupno na upit.
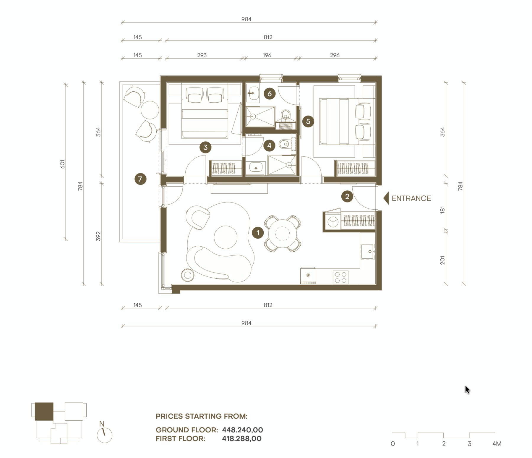
OPIS APARTMANA
Stan B10 - 1. kat - stambena površina 59,15 m2 (2 spavaće sobe + 2 kupaonice) + balkon (8,71 m2 - Z); ukupna površina 67,86 m2 = 418.288 EUR
Novi Vinodolski, Primorsko-goranska županija
Novi Vinodolski, Primorsko-goranska županija
Novi Vinodolski, Primorsko-goranska županija
Novi Vinodolski, Primorsko-goranska županija
Novi Vinodolski, Primorsko-goranska županija
Podstrana, Splitsko-dalmatinska županija
Nin, Zadarska županija
Privlaka, Zadarska županija
Vrbnik, Primorsko-goranska županija
Vrbnik, Primorsko-goranska županija
Vrbnik, Primorsko-goranska županija
Vrbnik, Primorsko-goranska županija
Povljana, Zadarska županija
Savudrija, Istarska županija
Njivice, Primorsko-goranska županija
Vrbnik, Primorsko-goranska županija
Vrbnik, Primorsko-goranska županija
Vodice, Šibensko-kninska županija