Otkrijte svoj idealno mjesto za odmor u srcu Dalmacije! Na samo 60 metara od kristalno čistog mora, u izgradnji je moderna apartmanska zgrada koja nudi deset ekskluzivnih stambenih jedinica. Idealna lokacija u Vodicama, blizu popularne gradske plaže i nekoliko minuta hoda do centra, čini ove stanove savršenim za život i odmor.
Zgrada se sastoji od podruma s garažama i spremištima, pružajući stanarima praktično rješenje za parkiranje i dodatni prostor za pohranu. Apartmani u prizemlju imaju prednost vlastitog vrta, idealnog za opuštanje na otvorenom. Na prvom katu, apartmani se odlikuju prostranim terasama i balkonima koji nude izvrstan pogled i prostor za druženje, dok apartmani na drugom katu, pored terasa, imaju pristup impozantnim krovnim terasama, što im daje poseban šarm i ekskluzivnost.
Svaki apartman u ovoj zgradi dizajniran je s pažnjom na detalje, osiguravajući suvremenost i funkcionalnost. Fasada debljine 15cm pruža izvrsnu toplinsku izolaciju i dodaje moderan estetski izgled. Antracitna PVC stolarija, opremljena komarnicima i roletama s elektropodizačima, jamči praktičnost i suvremen izgled, dok podizno-klizne stijene omogućuju obilje prirodnog svjetla i lakoću pristupa prekrasnim vanjskim prostorima. Kupaonice su opremljene modernim tuš-kabinama i sanitarijama renomiranih proizvođača, što dodatno naglašava osjećaj luksuza i komfora.
Svaki prostor je klimatiziran, a instalirane dizalice topline i mogućnost električnog podnog grijanja osiguravaju ugodnu temperaturu tijekom cijele godine. Sve ove karakteristike zajedno stvaraju savršen sklad modernog života blizu mora, što ove apartmene čini idealnim izborom za one koji traže kvalitetu i stil.
Vodice, smještene samo 11 km sjeverozapadno od Šibenika, idealno su mjesto za aktivan i nezaboravan odmor. Poznate po živopisnim festivalima, raznovrsnim sportskim aktivnostima i bogatom kulturnom naslijeđu, Vodice privlače posjetitelje željne avanture i opuštanja. Uz toplo gostoprimstvo domaćina i izvrsnu infrastrukturu, ovo turističko središte nudi savršenu kombinaciju odmora i zabave.
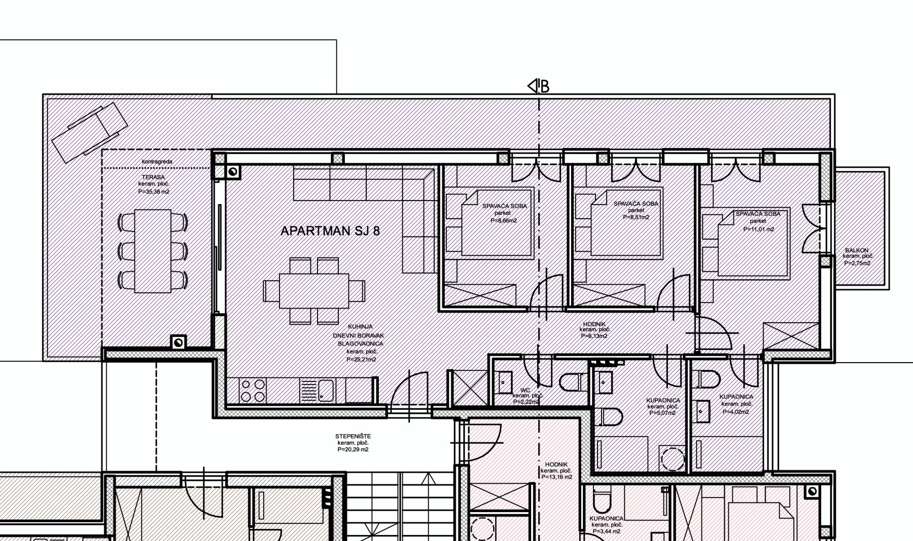
OPIS APARTMANA:
Apartman A-8 - 2. kat - stambena površina 70,83 m2 (3 spavaće sobe + 2 kupaonice + WC) + terasa (35 m2 - SZ) + balkon (3 m2 - JI) + krovna terasa (85 m2) + garažno parkirno mjesto + ostava u podrumu, neto obračunske površine 113,82 m2 = 512.190 EUR
Gradnja je u tijeku, a predviđeni rok završetka je ljeto 2024. godine. Osigurajte svoje mjesto u ovom prestižnom objektu i uživajte u blizini svega što Vodice imaju za ponuditi.
Za više informacija i detalje o kupnji, slobodno nas kontaktirajte!
Novigrad, Istarska županija
Novigrad, Istarska županija
Novigrad, Istarska županija
Novi Vinodolski, Primorsko-goranska županija
Novi Vinodolski, Primorsko-goranska županija
Novi Vinodolski, Primorsko-goranska županija
Privlaka, Zadarska županija
Donji Grad, Grad Zagreb
Vodice, Šibensko-kninska županija
Vodice, Šibensko-kninska županija
Gornja Dubrava, Grad Zagreb
Donji Grad, Grad Zagreb