Kuća – 3 spavaće sobe

Podsljeme, Grad Zagreb
REF: 116435
€1,100,000
3 Spavaće sobe
2 Kupaonice
187m²

Opis nekretnine

Na prodaju je luksuzna dvojna vila smještena u jednom od najprestižnijih kvartova u Zagrebu. Nalazi se u Mlinovima, u mirnoj i sigurnoj rezidencijalnoj zoni u neposrednoj blizini Veleposlanstva NR Kine. Vila nudi profinjenu kombinaciju suvremene arhitekture, privatnosti i iznimne kvalitete gradnje.

Objekt je dio dvojne vile s dvije potpuno odvojene stambene jedinice, a na prodaju je samo jedna vila. Prodaje se kao "ključ u ruke" opcija, s uključenim vrhunskim materijalima i završnom opremom.

Vila je projektirana za visoku razinu modernog stanovanja, s jasnim razdvajanjem dnevnog i privatnog dijela, elegantnim arhitektonskim linijama, izvrsnom funkcionalnošću prostora i obiljem prirodnog svjetla. Neto korisna površina od približno 187 m2 raspoređena je na tri etaže.

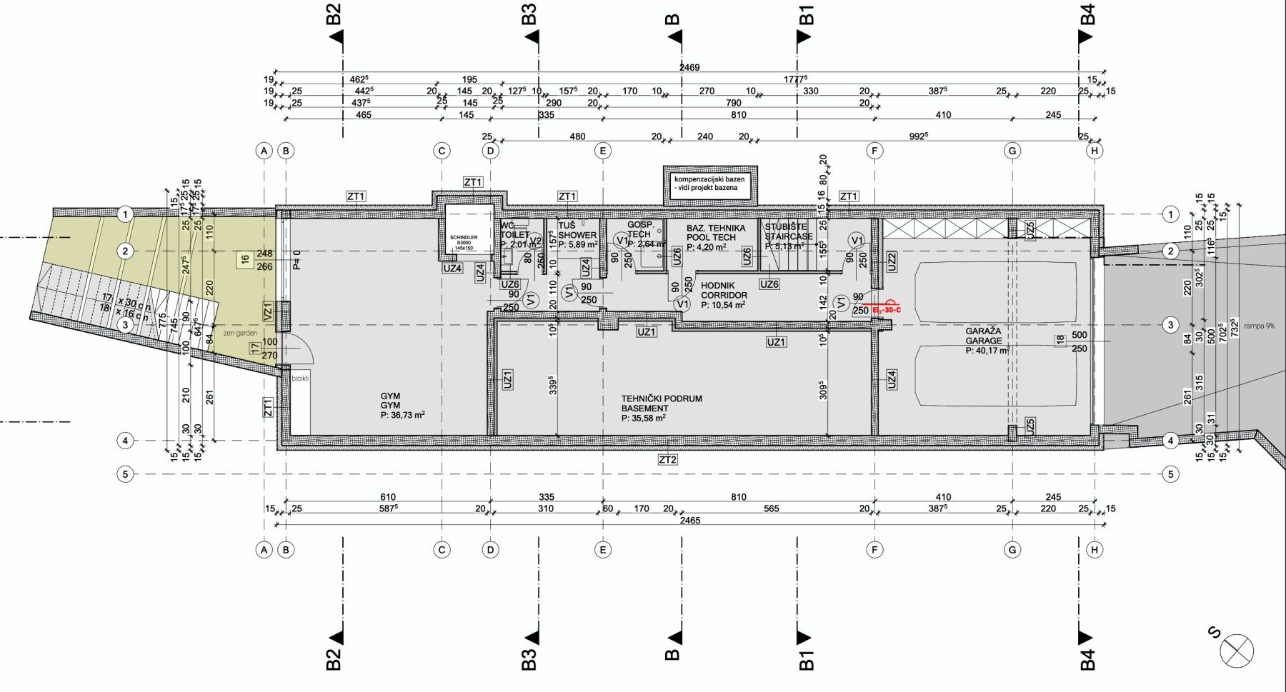
Podrum

Privatna garaža za dva automobila te prostrana spremišna ili tehnička zona ukupne površine od približno 50 m2.

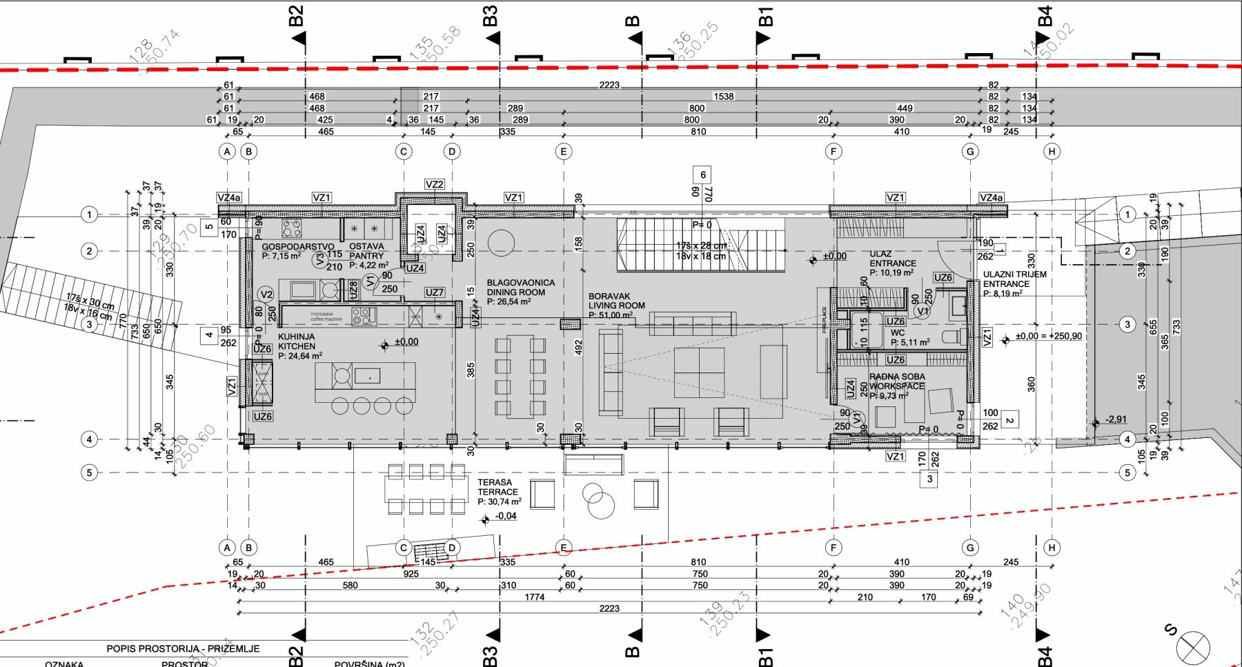
Prizemlje približno 88 m2

Open space dnevni boravak, kuhinja i blagovaonica s izlazom na terasu i vrt, gostinjski toalet i ulazni prostor.

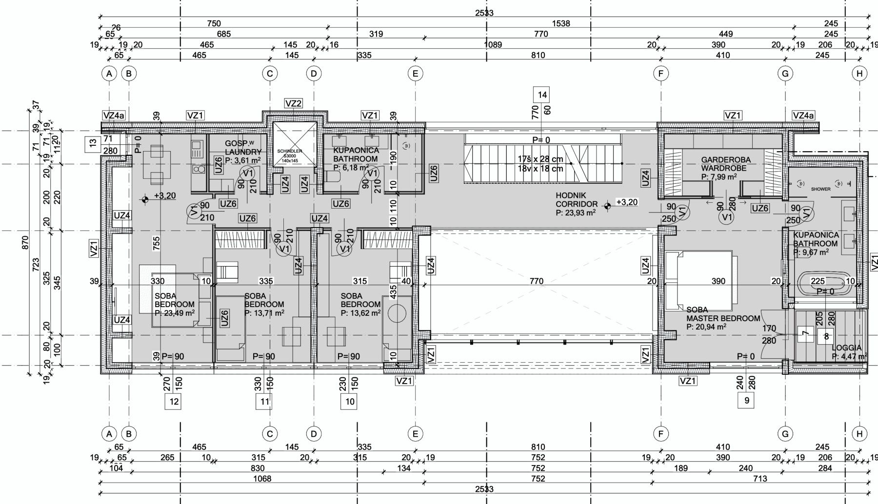
Prvi kat

Privatna stambena zona s glavnom spavaćom sobom, dvije dodatne spavaće sobe, dvije kupaonice, hodnikom i zasebnom praonicom rublja.

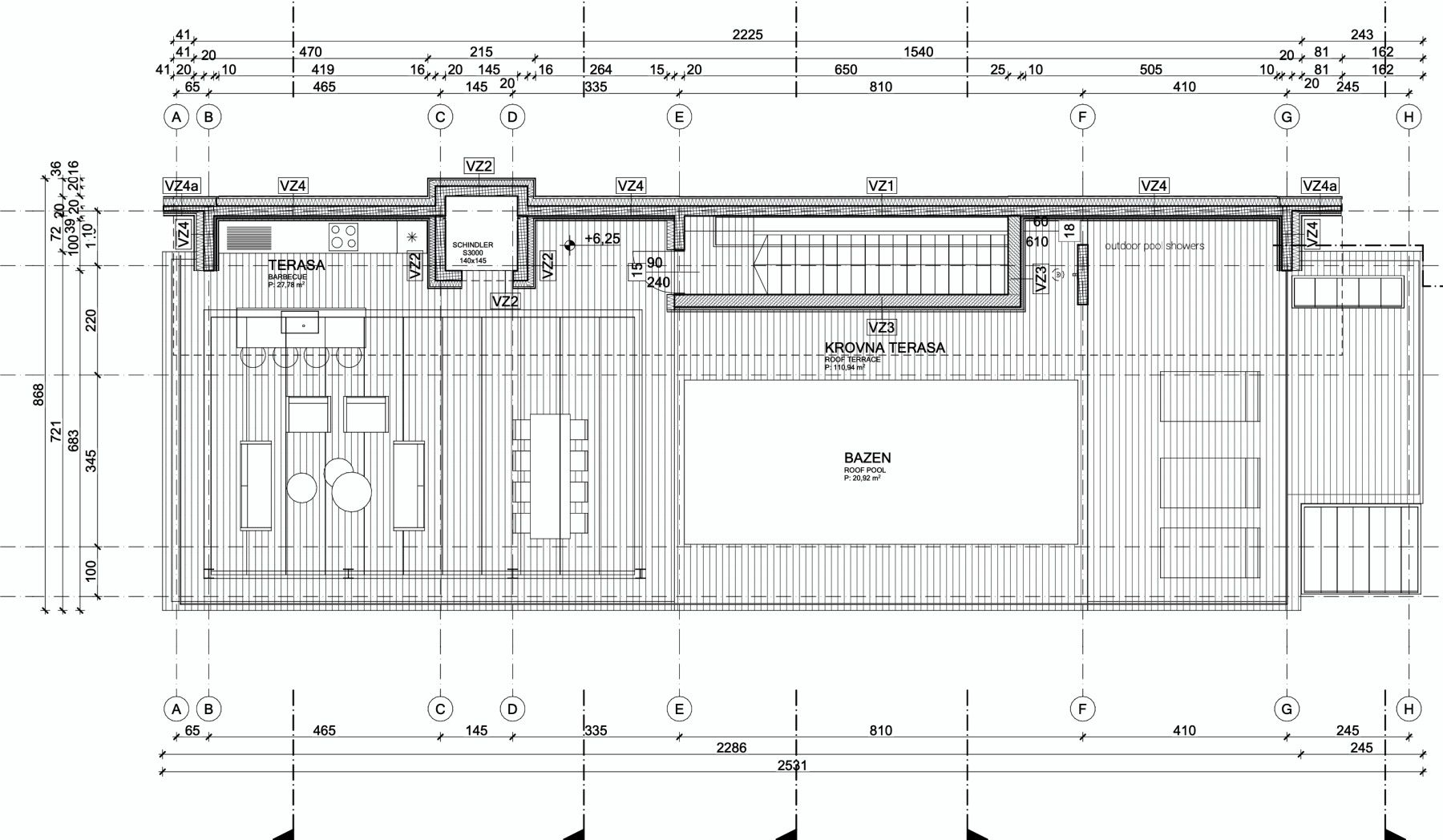
Vila ima i privatni vrt površine približno 133 m2, idealan za boravak na otvorenom, dječju igru ili ugradnju manjeg bazena ili jacuzzija.

U završnoj fazi izgradnje vila će biti opremljena vrhunskim sustavima i materijalima, uključujući Schuco aluminijsku stolariju s Otiima kliznim sustavima, ventiliranu fasadu, podno grijanje, dizalicu topline, inteligentni sustav upravljanja te visokoučinkoviti sustav hlađenja s linearnim difuzorima.

Okruženje dodatno naglašava jedinstvenu podsljemensku atmosferu, s obiljem zelenila i malim potokom ispred zgrade, stvarajući osjećaj mira i privatnosti uz brzi pristup centru grada.

Nekretnina uključuje dva parkirna mjesta po vili jedno garažno i jedno vanjsko što je rijetkost u ovoj zoni.

Ovo je izvrsna prilika za kupca koji traži suvremenu, tehnološki naprednu vilu na jednoj od najpoželjnijih mikrolokacija u Zagrebu, pogodnu za ugodan obiteljski život, luksuzni najam ili dugoročno ulaganje.

Za dodatne informacije ili dogovor razgledavanja stojimo na raspolaganju.

img

Ovu nekretninu zastupa:

Ivan Varat

ivan@sanpatrik.eu

+385 99 217 2314